 |
物件番号:IM0953 一宮町東浪見 3,300万円 |
 |
中古物件 海近の土地広コンテナ別荘
JR外房線東浪見駅1.4km 県道飯岡一宮線450m 東浪見海岸650m 海徒歩圏の立地
桜通りからもうひとつ内陸側の通りに面した閑静住宅地 マリンリゾートに適した住環境
敷地352坪 西側、北側2方道路角地 北側に砂利敷き大型駐車場と東側に広々した庭
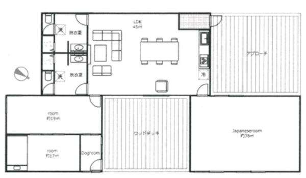
建物は平成29年築 44坪 コンテナ組み合わせた平家住宅 中央にテラスとルーフバルコニー付 |
 |
 |
| 東側外観 |
北東側外観 |
 |
 |
| 東南側外観 |
北側外観 |
 |
 |
| 北西側外観 |
コンテナを組み合わせた平家別荘 北西側 |
 |
 |
| 北側 |
東側 |
 |
 |
| 東南側 |
北東側 |
 |
 |
| 西側 |
南西側 |
 |
 |
| 南側 |
玄関まわり |
 |
 |
| 中央のテラス |
上部からテラス |
 |
 |
| ルーフバルコニーへの階段 |
ルーフバルコニーの様子 |
 |
 |
|
|
 |
 |
|
ジャグジー付 |
 |
 |
| バルコニーからの眺望 |
|
 |
 |
|
敷地の様子 北側の砂利敷き駐車場 |
 |
 |
|
|
 |
 |
|
敷地東側の庭の様子 |
 |
 |
|
|
 |
 |
|
|
 |
 |
|
|
 |
 |
| 接道道路からの様子 板張りのフェンス |
|
 |
 |
|
西側接道道路と周囲の街並み |
 |
|
|
|
| 配置図、間取り図 |


|
| 地 図 |
 |
|
| 物件種目 |
中古物件 |
建ペイ率/容積率 |
60%/200% |
| 価格 |
3,300万円 |
接道状況 |
西側公道、北側私道 |
| 所在地 |
長生郡一宮町東浪見 |
駐車場 |
有 |
| 交通 |
JR外房線東浪見駅 1.4km |
現況 |
空 |
| 土地面積 |
1,165.13u(352.45坪) |
設備 |
東京電力、公営水道、浄化槽、井戸 |
| 建物面積/間取 |
148.06u(44.78坪)/3LDK |
態様 |
仲介 |
| 築年月/構造 |
平成29年5月/軽量鉄骨造
亜鉛メッキ鋼板スレート葺平屋建 |
コメント |
海近の土地広コンテナ別荘 |
| 都市計画/用途地域 |
非線引/無指定 |
詳しい地図、周辺施設はこちら↓
|
|