房総・外房の田舎暮らし、海近リゾート、永住、別荘、エリア別・カテゴリ別など目的別に物件検索できる千葉の不動産サイト

| 会社案内 | サイトマップ |
物件番号:MB3571  茂原市中部 1,250万円

中古物件 中部団地 ハウスメーカー住宅
JR外房線茂原駅2.8km 国道128号線650m 中部区画整理地の整然とした街並み
買物施設や大型公園などの生活施設が近くにそろった便利で住み良い永住用環境
敷地62坪 南側道路に面した整形地 駐車場2台分と日当り良いゆとりの明るい庭
建物は平成3年築 37坪4SLDK 三井ホーム施工2×4住宅 外装リフォーム済 1階2重サッシ
西小1.4km 富士見中2km ショッピングプラザアスモ800m ローソン700m 茂原公園300m 

  東南側外観   南側外観
  南西側外観   三井ホーム施工 東南側
  南側正面   南西側
  玄関まわり   駐車場 2台分可
  南側の庭の様子
  日当り良好な明るい庭
  南側接道道路と周囲の街並み

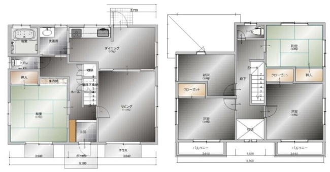
配置図、間取り図










地    図

物件種目 中古物件 建ペイ率/容積率 50%/100%
価格 1,250万円 接道状況 南側6m公道
所在地 茂原市中部 駐車場 有 
交通 JR外房線茂原駅 2.8km 現況
土地面積 206.51u(62.46坪) 設備 東京電力、公営水道、都市ガス、本下水
建物面積/間取 123.36u(37.31坪)/4SLDK  態様 仲介
築年月/構造 平成3年7月/木造スレート葺2階建 コメント 三井ホーム施工
外装リフォーム済
都市計画/用途地域 非線引/一種低層住専 


詳しい地図、周辺施設はこちら↓


Copyright (C) 2006 NBhome All right reserved.