 |
物件番号:SK0998 白子町浜宿 5,150万円 |
 |
リフォーム済中古物件 海近田舎暮らし向けの大型和風住宅
JR外房線大網駅約13km 県道飯岡一宮線100m 白子海岸450m 海徒歩圏エリア
敷地546坪 南側、北側の両面道路に面した大型整形地 田舎暮らしに適したゆとりの広さ
入口から玄関先まで続く舗装駐車場 南側に庭木庭石配した庭 北側に菜園可能なスペース
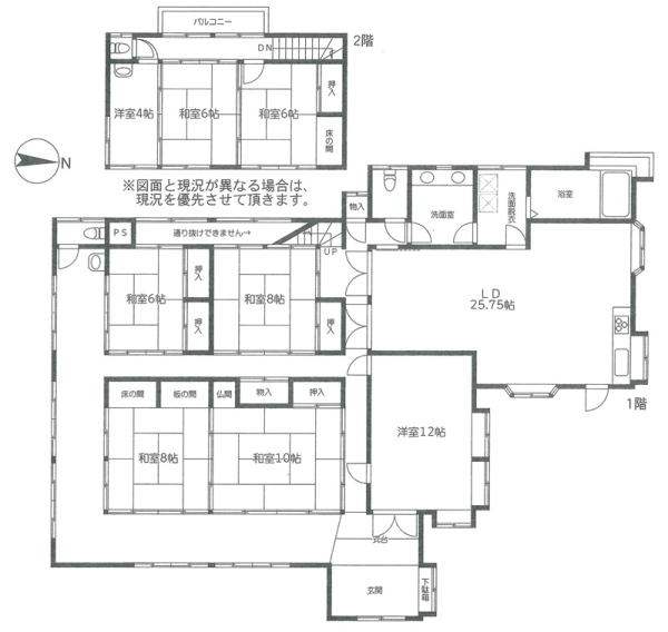
建物は昭和49年築 約80坪木造2階建 25帖LDK 広縁付10帖×8帖和室続き間 フルリフォーム済 |
 |
 |
| 東側外観 |
東南側外観 |
 |
 |
| 北東側外観 |
北側外観 |
 |
 |
| 北西側外観 |
西側外観 |
 |
 |
| 南西側外観 |
8LDK大型和風住宅 東南側 |
 |
 |
| 東側 玄関側正面 |
北東側 |
 |
 |
| 南側 |
南西側 |
 |
 |
| 西側 |
北側 |
 |
 |
| 北西側 |
玄関まわり |
 |
 |
| 接道道路からの様子 東南側外観 |
南側外観 |
 |
 |
| 南側外観 |
南西側外観 |
 |
 |
| 西側外観 |
敷地入口 |
 |
 |
| 入口から舗装進入路が玄関先まで続きます |
駐車場としては多数台可能なスペースです |
 |
 |
|
|
 |
 |
|
敷地の様子 東側の庭の様子 |
 |
 |
|
|
 |
 |
| 北側の庭の様子 菜園可能な空地です |
|
 |
 |
|
玄関先から庭の様子 北東方向 |
 |
 |
| 同じく東方向 |
東南方向 |
 |
 |
| 南側の庭の様子 |
庭木庭石配した庭です |
 |
 |
| 立派な邸内社あり |
接道道路と周囲の街並み 南側道路 |
 |
 |
|
西側道路 |
 |
 |
|
北側道路 |
 |
 |
|
玄関入口 |
 |
 |
|
1階10帖×8帖和室続き間 |
 |
 |
|
|
 |
 |
|
広縁の様子 |
 |
 |
|
|
 |
 |
| 西側の和室 2部屋 |
|
 |
|
 |
|
|
中央通路 |
 |
|
 |
| 裏側通路 |
南側の手洗い |
トイレ |
 |
 |
 |
| 12帖洋室 |
|
LDKの様子 |
 |
|
 |
|
25.75帖LDK |
キッチン |
 |
 |
 |
| 脱衣所 |
浴室 |
洗面所 |
 |
 |
 |
| トイレ |
階段 |
2階廊下 |
 |
 |
 |
| 2階各居室の様子 |
|
|
 |
 |
 |
|
板の間 |
2階トイレ |
| 配置図、間取り図 |


|
| 地 図 |
 |
|
| 物件種目 |
中古住宅 |
建ペイ率/容積率 |
60%/200% |
| 価格 |
5,150万円 |
接道状況 |
南側、北側各公道 |
| 所在地 |
白子町浜宿 |
駐車場 |
有 |
| 交通 |
JR外房線大網駅 13km |
現況 |
空 |
| 土地面積 |
1,807.8u(546.85坪) |
設備 |
東京電力、公営水道、都市ガス、本下水 |
| 建物面積/間取 |
264.41u(79.98坪)/8LDK |
態様 |
仲介 |
| 築年月/構造 |
昭和49年7月/木造2階建 |
コメント |
海近の田舎暮らし向け和風住宅 |
| 都市計画/用途地域 |
非線引/一種住居 |
詳しい地図、周辺施設はこちら↓
|
|