 |
物件番号:SK1000 白子町剃金 5,300万円 |
 |
新築物件 海徒歩圏のビルトインガレージ付平家住宅
JR外房線本納駅約10km 県道飯岡一宮線800m 剃金海岸900m 海徒歩圏の立地
敷地92坪 西側分譲地道路に面した整形地 駐車場2台分とガレージ内2台分で計4台分
南側にリビングから続く広いテラスと日当り良い庭 南方向には田園風景広がり見晴らし良好
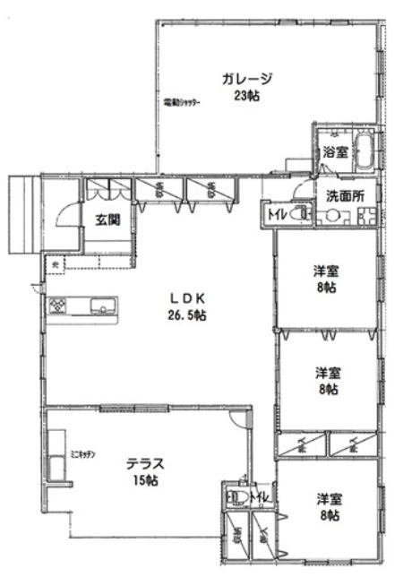
建物は新築平家住宅 49坪3LDK+ガレージ 太陽光発電付オール電化 床暖房完備
26帖LDK リビング南側に15帖テラス付 8帖洋室3部屋 電動シャッター付2台分ガレージ |
 |
 |
| 北西側外観 |
西側外観 |
 |
 |
| 南西側外観 |
南西側外観 |
 |
 |
| 南側外観 |
東南側外観 |
 |
 |
| 東側外観 |
北東側外観 |
 |
 |
| 新築の3LDK+ガレージ 北西側 |
西側 玄関側 |
 |
 |
| 南西側 |
南西側 |
 |
 |
| 南側 |
東南側 |
 |
 |
| 北側 |
玄関まわり |
 |
 |
| 電動シャッター付ガレージ |
リビングから続くテラス ミニキッチン付でBBQ楽しめます |
 |
 |
| 南側の庭の様子 |
|
 |
 |
|
|
 |
 |
| 南方向の眺望 |
西側接道の分譲地道路 突き当りの立地 |
 |
 |
|
玄関入口 |
 |
 |
|
南側8帖洋室 |
 |
 |
|
LDK続き間の8帖×8帖洋室 |
 |
 |
| LDKと続けて広く使えます |
|
 |
 |
|
|
 |
 |
| LDKの様子 |
26帖LDK |
 |
 |
|
|
 |
 |
|
|
 |
|
 |
| DK |
アイランドキッチン |
|
 |
 |
 |
|
トイレは2カ所 |
|
 |
 |
 |
| 洗面所 |
浴室 |
ガレージ内部 |
 |
 |
 |
|
|
テラスにミニキッチン付 |
| 配置図、間取り図 |


|
| 地 図 |
 |
|
| 物件種目 |
新築住宅 |
建ペイ率/容積率 |
60%/200% |
| 価格 |
5,300万円 |
接道状況 |
西側私道 |
| 所在地 |
白子町剃金 |
駐車場 |
有 |
| 交通 |
JR外房線本納駅 10km |
現況 |
空 |
| 土地面積 |
304.16u(92.00坪) |
設備 |
東京電力、公営水道、浄化槽
オール電化、太陽光発電、床暖房 |
| 建物面積/間取 |
162.72u(49.22坪)/3LDK+車庫 |
態様 |
仲介 |
| 築年月/構造 |
令和7年4月/
木造合金メッキ鋼板葺平屋建 |
コメント |
海徒歩圏のガレージ付新築平家 |
| 都市計画/用途地域 |
非線引/無指定 |
詳しい地図、周辺施設はこちら↓
|
|