 |
物件番号:SK1007 白子町八斗 2,580万円 |
 |
中古物件 海近の広い庭付別荘
JR外房線茂原駅約10km 旧県道バス通り300m 白子海岸600m 海徒歩圏の閑静住宅地
敷地約275坪 西側道路に水路はさんで面し奥行きのある東西に長い長方形の地形
西側敷地入口側に広い駐車場 東側敷地半分以上に広く明るい庭 テニスコートも入るサイズ
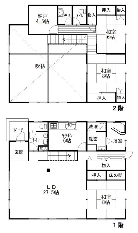
建物は平成1年築 43坪3SLDK 元企業保養所 27帖LDは天井高く吹抜の大空間
居室は全て和室 ジェットバス付の大型浴室 内外とも状態良好につき即利用可能です |
 |
 |
| 東南側外観 |
東側外観 |
 |
 |
| 北東側外観 |
東側外観 |
 |
 |
| 北西側外観 |
南西側外観 |
 |
 |
| 南側外観 |
3SLDK 元企業保養所の建物 北西側 |
 |
 |
| 西側 |
南西側 |
 |
 |
| 南西側 |
南側 |
 |
 |
| 東南側 |
東側 |
 |
 |
| 北東側 |
玄関まわり |
 |
 |
| 西側接道道路からの様子 南西側外観 |
同じく西側外観 |
 |
 |
| 北西側外観 |
水路の専用通路を渡ります |
 |
 |
| 駐車場ゲート |
敷地西側の駐車場スペースの様子 |
 |
 |
| 多数台収容可能 |
|
 |
 |
| カーポート付 |
東側の庭の様子 |
 |
 |
| 敷地半分以上の広々した庭 |
日当り良好です |
 |
 |
| テニスコートも入るサイズです |
|
 |
 |
| ドッグランや本格菜園で楽しめます |
2階から庭の様子 |
 |
 |
| 建物南側スペース |
西側接道道路と周囲の街並み |
 |
 |
|
玄関入口 |
 |
 |
|
LDの様子 27帖の大広間 |
 |
 |
| 高い吹抜天井 |
開放感のある空間です |
 |
 |
|
|
 |
 |
| 1階8帖和室 |
|
 |
 |
| キッチン内の様子 |
|
 |
 |
| キッチン |
トイレ |
 |
 |
 |
|
洗面、脱衣所 |
洗濯機置き場 |
 |
 |
 |
| 浴室 |
ジェットバスの浴槽 |
裏口通路 |
 |
|
 |
| 階段 |
2階廊下 |
2階から吹抜の様子 |
 |
|
 |
|
|
2階トイレ |
 |
 |
 |
| 2階洗面所 |
納戸 |
2階6帖和室 |
 |
 |
 |
|
2階8帖和室 |
|
 |
 |
 |
| 2階からの眺望 北東方向 |
東方向 |
東南方向 |
| 配置図、間取り図 |


|
| 地 図 |
 |
|
| 物件種目 |
中古住宅 |
建ペイ率/容積率 |
60%/200% |
| 価格 |
2,580万円 |
接道状況 |
西側公道に水路はさんで接道 |
| 所在地 |
白子町八斗 |
駐車場 |
有 |
| 交通 |
JR外房線茂原駅 10km |
現況 |
空 |
| 土地面積 |
909u(274.97坪) |
設備 |
東京電力、公営水道、都市ガス、浄化槽 |
| 建物面積/間取 |
143.81u(43.50坪)/3SLDK |
態様 |
仲介 |
| 築年月/構造 |
平成1年12月/木造スレート葺2階建 |
コメント |
海近の元企業保養所 |
| 都市計画/用途地域 |
非線引/1種住居 |
詳しい地図、周辺施設はこちら↓
|
|