房総・外房の田舎暮らし、海近リゾート、永住、別荘、エリア別・カテゴリ別など目的別に物件検索できる千葉の不動産サイト

千葉 不動産・物件【エヌ・ビー・ホーム】 | 会社案内 | サイトマップ |
物件番号:OA2607 大網白里市富田 880万円

中古物件 生活便利な平家住宅
JR外房線大網駅約4.2km  県道バス通りから900m 増穂北小東南側エリア 閑静住宅地
学校、スーパー、コンビニ、郵便局等生活施設が近くにそろった便利な住み良い住環境
敷地54坪 東側道路に面した南北に長めの整形地 駐車場2台分 
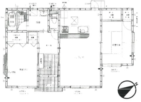
建物は平成17年築 19坪2LDK 小家族向け平家住宅 14帖LDKと6帖和室続き間
増穂北小750m 大網アリーナ750m スーパーカスミ1.3km セブンイレブン850m 増穂局1.1km  

  東南側外観   東側外観
  北東側外観   南側外観
  東南側   東側 玄関側正面
  北東側   南側
  玄関まわり   駐車場2台分
  東側接道道路と周囲の街並み

配置図、間取り図










地    図

物件種目 中古物件 建ぺい率/容積率 50%/100%
価格 880万円 接道状況 東側約6m私道
所在地 大網白里市富田 駐車場
交通 JR外房線大網駅 4.2km 現況
土地面積 180.00u(54.45坪) 設備 東京電力、公営水道、浄化槽、集中PG
建物面積/間取 62.93u(19.03坪)/2LDK 態様 仲介
築年数/構造 平成17年12月/木造平屋建 コメント 生活便利な平家住宅
都市計画/用途地域 市街化区域/一種低層住専


詳しい地図、周辺施設はこちら↓


案内図
Copyright (C) 2006 NBhome All right reserved.