 |
物件番号:IS2074 いすみ市岬町桑田 480万円 |
 |
中古物件 ゆとりの庭付閑静平家住宅
JR外房線太東駅3.4km 県道夷隅太東線沿いの古くからの集落地 夷隅川そばの自然環境
敷地114坪 東側道路に面し道路から少し高台の庭 南側に緑に囲まれた落ち着いた庭
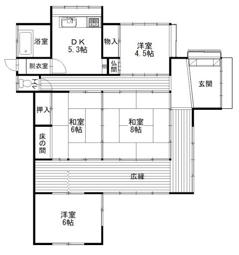
建物は昭和48年築 28坪4DK 平家住宅 広縁付和室続き間 未登記の増築部分あり |
 |
 |
| 接道道路から東側外観 |
同じく東南側外観 |
 |
 |
| 北東側外観 |
南側外観 |
 |
 |
| 4DK平家住宅 東側玄関側正面 |
北東側 |
 |
 |
| 東南側 |
南側 |
 |
 |
| 北側 |
西側 |
 |
 |
| 玄関まわり |
門扉 |
 |
 |
| 東側の庭の様子 小型車なら駐車可能です |
|
 |
 |
|
南側の庭の様子 |
 |
 |
|
|
 |
 |
|
西側の庭の様子 |
 |
 |
|
|
 |
 |
| 東側接道道路と周囲の街並み |
|
 |
 |
| 玄関入口 |
|
 |
 |
| 8帖×6帖和室続き間 |
|
 |
 |
|
|
 |
 |
|
|
 |
 |
| 広縁の様子 |
|
 |
 |
| 南側広縁と6帖洋室は増築部分 |
6帖洋室 |
 |
 |
|
4.5帖洋室 |
 |
 |
|
DKの様子 |
 |
 |
|
キッチン |
 |
 |
| トイレ |
浴室 |
| 配置図、間取り図 |


|
| 地 図 |
 |
|
| 物件種目 |
中古物件 |
建ペイ率/容積率 |
60%/200% |
| 価格 |
480万円 |
接道状況 |
東側公道 |
| 所在地 |
いすみ市岬町桑田 |
駐車場 |
有 |
| 交通 |
JR外房線太東駅 3.4km |
現況 |
空 |
| 土地面積 |
378u(114.34坪) |
設備 |
東京電力、公営水道、PG、浄化槽 |
| 建物面積/間取 |
93.5u(28.28坪)/4DK |
態様 |
仲介 |
| 築年月/構造 |
昭和48年12月/
木造亜鉛メッキ鋼板葺平屋建 |
コメント |
夷隅川そばの閑静平屋住宅
※未登記増築あり |
| 都市計画/用途地域 |
非線引/無指定 |
詳しい地図、周辺施設はこちら↓
|
|