 |
物件番号:IS2095 いすみ市上布施 1,800万円 |
 |
中古物件 田舎暮らし向け土地広平家住宅
JR外房線御宿駅4.4km 県道勝浦布施大原線400m 旧布施小西側エリアの農村集落地
敷地466坪 東側、南側の2方道路角地 生垣に囲まれた敷地 菜園コーナーと芝生の庭
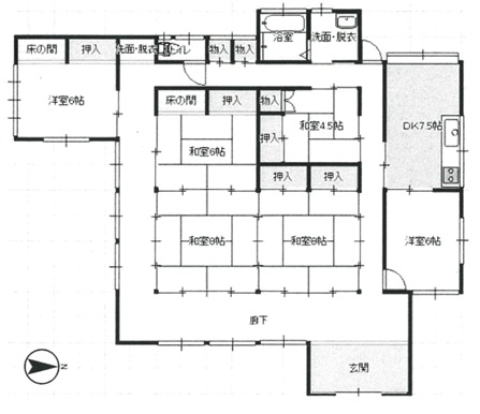
建物は昭和49年築 43坪6DK 和風平家住宅 太陽光発電装置と蓄電池システム完備
水まわり、フローリングのリフォーム歴ありそのまま入居可能 別棟納屋と物置あり |
 |
 |
| 東南側外観 |
東側外観 |
 |
 |
| 南側外観 |
6DK平家住宅 東側正面 |
 |
 |
| 東南側 |
北側 |
 |
 |
| 玄関まわり |
接道道路からの様子 東側外観 |
 |
 |
| 同じく東南側外観 |
南側外観 |
 |
 |
| 北東側外観 |
敷地入口の通路 |
 |
 |
| 入口からの舗装駐車場スペース |
|
 |
 |
| 別棟納屋 |
|
 |
 |
| 別棟物置 |
庭の様子 中央の芝生スペース |
 |
 |
|
|
 |
 |
| 東側の庭 |
南側の庭 菜園コーナー |
 |
 |
|
|
 |
 |
| 北側のスペース |
|
 |
 |
| 東側接道道路と周囲の環境 |
|
 |
 |
| 南側道路 |
玄関入口 |
 |
 |
|
各居室の様子 8帖×8帖和室続き間 |
 |
 |
|
|
 |
 |
|
西側の6帖和室 |
 |
 |
|
広縁の様子 |
 |
 |
|
南西側6帖洋室 |
 |
|
 |
|
北東側6帖洋室 |
|
 |
 |
 |
| DKの様子 |
|
キッチン |
 |
 |
 |
| トイレ |
洗面所 |
洗面所は2カ所 |
 |
|
 |
| 浴室 |
納屋内部 |
物置内部 |
| 配置図、間取り図 |


|
| 地 図 |
 |
|
| 物件種目 |
中古物件 |
建ペイ率/容積率 |
60%/200% |
| 価格 |
1,800万円 |
接道状況 |
東側4m公道、南側2.3m公道 |
| 所在地 |
いすみ市上布施 |
駐車場 |
有 |
| 交通 |
JR外房線御宿駅 4.4km |
現況 |
空 |
| 土地面積 |
1,542.61u(466.63坪) |
設備 |
東京電力、公営水道、PG、浄化槽
太陽光発電、蓄電池 |
| 建物面積/間取 |
144.11u(43.59坪)/6DK |
態様 |
仲介 |
| 築年月/構造 |
昭和49年2月/木造平屋建 |
コメント |
田舎暮らし向け和風平家住宅 |
| 都市計画/用途地域 |
非線引/無指定 |
詳しい地図、周辺施設はこちら↓
|
|